Obmedzená prevádzka 21.–22. 5.
Vážení zákazníci, z prevádzkových dôvodov bude náš e-shop v dňoch 21. a 22. mája nedostupný. Od 23. mája sme opäť plne k dispozícii. Ďakujeme za pochopenie.
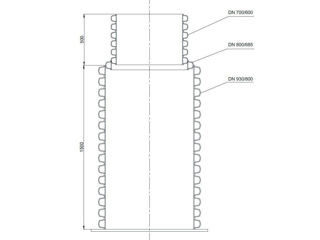
PUMP black line Box 1 VE Morava Master čerpacia jímka DN40 vrátane hriadeľa 930x700x2000mm na spodnú vodu, plaváky 2ks, sondy 2ks, 400V 1,1kW, kábel 15m ZB00068510
Kód: 67442Podrobný popis
Čerpacia šachta BLACK LINE BOX 1 VE MORAVA M ASTER DN 40 vrátane šachty 930 x 700 x 2000 mm je určená na podzemnú vodu. Čerpacia šachta je vybavená vretenovým čerpadlom z nehrdzavejúcej ocele, ktoré je ovládané automatickým riadiacim systémom. Celá zostava je určená na pripojenie na tlakovú kanalizačnú sieť.
Hlavná riadiaca automatika
- Zabezpečuje automatickú prevádzku čerpacej šachty
- Krytie IP55 na vonkajšie použitie
- Snímanie hladiny pomocou 2 sond a 2 plavákových spínačov
- Zabudovaná zvuková signalizácia poruchy čerpadla a maximálnej hladiny
- Vybavený riadiacim modulom, ktorý umožňuje ručné čerpanie z čerpacej jímky
- Vybavený prúdovým chráničom
Použitie
- Pre budovy, kde sa odpadová voda vypúšťa pod úroveň verejnej kanalizácie.
- Hospodárne a nákladovo efektívne riešenie pre zástavbu, kde je ťažké vybudovať gravitačnú kanalizáciu.
Dodatočné parametre
| Kategória: | Čerpacie nádrže |
|---|---|
| Záruka: | 24 |
| Hmotnosť: | 80 kg |
| EAN: | 8596455038702 |
| Výrobca: | PUMPA |
| EAN: | 8596455038702 |
Diskusia
Buďte prvý, kto napíše príspevok k tejto položke.
